Real estate listing preview #1Real estate listing preview #2Real estate listing preview #3
listing
1 of 3
CondoFor Sale
$999,900
1410 Meridian Place NW
Washington, DC 20010
Listed by: Samson Properties, (703) 378-8810
MLS: Bright MLS
3Beds
1Bath
1,376Sq Ft
Est. Mortgage
$5,261/mo

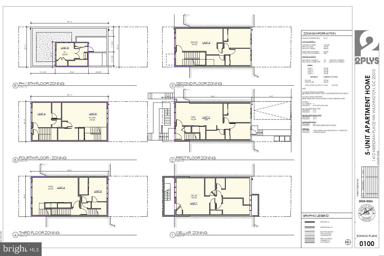
Plans for a 5-unit building have been uploaded and are in the final round of reviews. You also have the opportunity to purchase both 1410 and 1412 Meridian Place to construct a 10-unit building. Each property has an estimated ARV of $2.6M, with a combined ARV of $5.2M. The property is being sold "as-is. For more information including budgets, plans, drawings, contact the listing agent. This is an excellent opportunity to build equity.

Get in touch
This data is up-to-date as of 11/11/2025 09:41 PM. Listing provided by Saurabh Vasudeva of Samson Properties.
Community / School Information